Загружаю...

0(95) 149-18-85
0(96) 283-23-76
SF-3-237-980

Продам 2-комнатную квартиру

Местоположение: Киев, Голосеевский район, Теремки-1, Заболотного Академика ул., 128

Карта
2 46/8 м² 16/16 42 700 $
Продам 2-комнатную квартиру

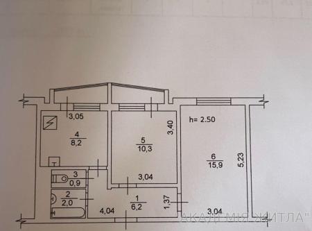
Продається 2-кімнатна квартира без ремонту, площею 46 м².
Розташування: спальний район Теремки-1, вулиця Заболотного Академіка, Київ.
Квартира на 16-му поверсі 16-поверхового будинку. Площа кухні - 8 м². Клас квартири – комфорт.

Будинок зручно розташований, поруч з усією необхідною інфраструктурою. Це ідеальний вибір для тих, хто шукає квартиру з можливістю самостійного ремонту на свій смак.

Не втрачайте можливості стати власником цієї затишної квартири в столиці!

Основная информация

Цена:  
- за объект 42 700 $
- за кв. метр ≈928 $
Комиссия: 5%
Ремонт: без ремонта
Класс жилья: комфорт
Типовая планировка: свободная планировка
Схема комнат: раздельная
Число комнат: 2
Площадь общая, м²: 46
Этаж: 16
Этажность: 16
Расположение: спальные районы

Дополнительно

Коммуникации

Вода:
центральная;
Отопление:
центральное;

Прочее

Дата обновления информации:
11.12.2025 23:28;